Sagitta 33 For Sale
S/V Peregrine is a 1994 Richard Woods Sagitta catamaran.
EnquirePrice : $99,500
Currently in a residential slip in Coral Gables (Miami) Florida
Contact for inquiries: Co-Owner Brian McGuinness
miasailor@comcast.net
Comprehensive Specifications will be emailed to interested parties
Peregrine has been extended to 33 feet.
- New engines for vessel and tender 2019
- New standing rigging 2019
- New Solar panels, controllers 2019 and batteries 2025
- New custom fit double mattresses for both bunks 2019
- New anchor tackle and chain 2019-2022
- New nets 2022
- New mainsail & Stack-pack by UK Sails 2025
Yacht Summary
The Sagitta 30 (Peregrine was extended by 3′) is a fast, manageable, and genuinely liveable performance catamaran for couples or small crews. A previous owner singlehanded S/V Peregrine across the Atlantic and back to the States after visiting N. Africa, the Caribbean and the Bahamas.
Designed by renowned multihull specialist Richard Woods, the Sagitta combines offshore capability with shallow draught, light displacement and efficient hulls for comfortable 6–8 knot cruising and double‑digit speeds when pressed.
You can read of review of this catamaran from Yachting Monthly HERE.
“Good performance and roomy accommodation”.
She can be optimised for racing or cruising, while the generous 5.95m beam delivers a big cockpit, excellent stability and very little slamming thanks to a short, high bridgedeck.
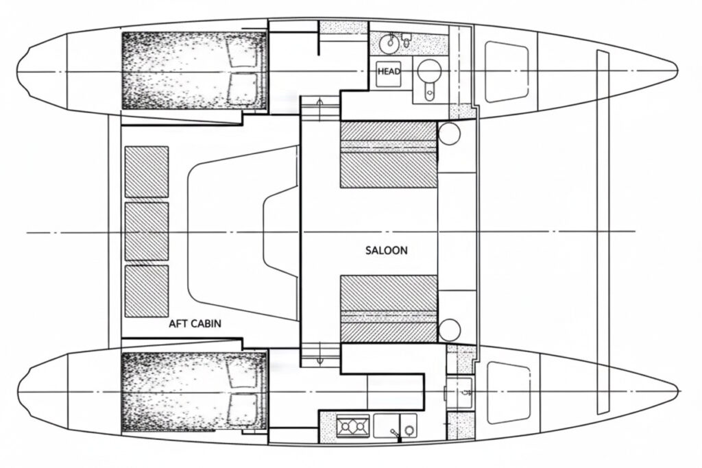
Below, the bridgedeck saloon with all‑round view, double berths in each hull and practical galley/heads layout make it a surprisingly roomy and bright 30‑footer that still feels easy to handle short‑handed. For monohull sailors looking to “step across”, it offers a mix of engaging helm, offshore pedigree and real cruising comfort in a compact, affordable package.
Specifications
| Catamaran Name | S/V Peregrine |
|---|---|
| Model | Sagitta (stretched) |
| Year Built | 1994 |
| Builder | Heritage Manufacturing South Africa |
| Designer | Richard Woods |
| Construction | Fiberglass – foam and dynacell core |
| LOA | 33ft |
| Beam | 19ft |
| Headroom | 6ft 2in |
| Draft | 3ft 6in |
| Displacement | 7700lbs |
| Mast Height | 46ft |
| Bridgedeck Clearance | 18in |
| Fuel Tanks | 28 gal |
| Water Tanks | 160 gal |
| Holding Tanks | Natures Composting Head |
| Heads | 1 |
| Galley Location | Down – Starboard Pontoon |
| Engines | 1 20hp Suzuki DF20 |
| Engine Hours | 520 approximate |
| Sails |
New SS rigging in 2019 by Mack Sails Fully-battened mainsail with double reef points by UK SAILS – Miami (2024) with new mainsail stack-pack Quicksilver Genoa on roller furling by Doyle Continuous furling inner stay sail by Mack Sails 1.5oz symmetrical spinnaker with sock |
Layout

Inventory
Catamaran Inventory
Electrical
- 4 X Golf Cart batteries (new 2025)
- 2 X Alieko 140W solar panels on the custom arch (new 2019)
- 2 X Genasun MPPT controllers
- ProWatt 1,500W Inverter
- 110v and 12v outlets throughout the boat
- 2 x 2-speed 12v fans
- White/red 12v LED lights throughout the boat
Deck and Hull
- 2 x toast colored Sunbrella rain-catcher anchor awnings
- Mainsail cover in toast Sunbrella (option as new stack pack in place)
- 4 x Lewmar self-tailing winches: 2 x 30ST (New Self-tailing sections 6/25) + 2 x 16ST
- 11 deck hatches to allow airflow from all directions
- 6 x Lewmar size 0 opening ports in the hulls
- 4 SeaDek Seafoam Green non-skid deck floor panels including full cockpit
- 2 x extra-large access hatches for bow storage
- 2 x large forward deck storage lockers for ground tackle, fenders, lines, etc
- 2 x large cockpit storage lockers
- 3 x winch handles
- 316 SS handrails
- 2 x SS fishing rod holders
- 1 Stainless 3-Step retractable swim ladder – starboard pontoon
- Antifouled in 2024
Sails & Rigging
- Aluminum mast and boom by Sparcraft
- New SS rigging in 2019 by Mack Sails
- Fully-Battened mainsail with double reef points by UK Sails 2024
- Quicksilver Genoa on roller furling by Doyle
- Continuous furling inner stay sail by Mack Sails
- 1.5oz symmetrical spinnaker with sock
- Finfurl (custom built for offshore cruising) roller furling for genoa
- Lazy jacks / mainsail Stack Pack by UK Sailmakers 2024
- SS mast steps to the masthead
- Separate snatch blocks and carabiners for poling out head sails without poles
Air Draft 46ft
Engines & Mechanical
- 20HP Suzuki (new 2019) outboard with power tilt on all aluminum lifting
motor skid (Rebuilt 2024 – additional welds) with remote console at helm. - Suzuki outboard gearshift and throttle cables replaced (2024)
Navigation Equipment
- Hydrovane self-steering unit (new 2019) mounted to starboard swim platform
with control lines in cockpit. - Raymarine SmartPilot X5 electric autopilot with internally mounted computer
- and external controls and drive unit.
- Mobile remote autopilot controller S100
- Vesper Marine AIS
- Weems & Plath Barometer
- Plastimo Contest 130 Compass
- Windex at masthead
Safety
- Trident Marine LP gas system with remote switch and gas detector
- 3 fire extinguishers – Certified & Weighed by local Fire Inspection firm 2025
- FireAngel SCB10 combination smoke and carbon monoxide alarm
- Bilge pump installed in each pontoon; only one thru-hull fitting in self-
- contained compartment in forward port pontoon
- Para-Tech Delta sea drogue
Anchor & Docking
- 35lb Mantus anchor on 30m of 8mm DIN766 chain and 180ft of 5/8 nylon rode
- FX23 Fortress anchor with 14’ of 3/8” chain and 85ft of 3/4” nylon rode
- Fortress Guardian G16 anchor
- Dinghy anchor and rode
- Fenders and Dock Lines
Miscellaneous
- Vessel is plumbed for hot water but this system is capped. Installation of
water heater would reactivate.
Galley
- Large U-shaped galley with plenty of work surface
- 3 burner Eno propane stove
- 2 x Viking fiberglass 20lb propane tanks
- Norcold 12/120v refrigerator with small freezer
- Functionally large 316 stainless steel sink
- Pressurized fresh water throughout the boat
Salon
- 2 12volt Caframo fans; one in each hull
- Multiple opening port lights forward, port, starboard – well ventilated
Cockpit
- Cockpit cushions
- Two large blue/white vinyl West Marine Beanbag Seats
- 2025: Cockpit and adjacent area sanded, primed & painted two topcoat layers with high quality marine paint & powdered non-skid where applicable
- SeaDek non-skid panels (Seafoam green) installed (4) in cockpit area 2025
Electronics
- Anchor light at masthead
- LED Steaming and Deck Light
- Uniden MC635 VHF radio
Accommodations
- Airhead composting toilet with low power vent and three liquid tanks.
- Manual bilge pump in head for shower sump pump out.
- Mosquito screens for 8 hatches
- Two Custom Double-bed berths
Specs
| Length Overall | 33′ /10.1m |
|---|---|
| Beam Overall | 19′ / 5.8m |
| Draft | 3′ 6″ / 1.1m |
| Disp. (Light) | 7700 lbs / 3.5 T |
| Power | 1 20hp Suzuki DF20 |
| Water | 160 US Gal / 605 L |
| Fuel | 28 US Gal / 105 L |
| Mast above water | 46′ / 14.02 m |
Contact Katamarans
Share your details with us and we’ll be in touch to discuss further. Let us know if you would like help with configuring options and pricing.
"*" indicates required fields